How to choose a gas boiler
When choosing a suitable means of heating, many owners of apartments and private houses prefer gas boilers. These devices are quite simple and easy to use, have a high efficiency and a long period of operation.
The content of the article
What parameters should you pay attention to when choosing a gas boiler?
To ensure the full functioning of such a device after its purchase and connection, it is necessary to pay attention to a number of important nuances during the selection process. There are a number of specific criteria on the basis of which it is recommended to evaluate a gas boiler model. Almost all characteristics of this device are closely interconnected and interdependent. For this reason, they need to be assessed as a whole:
- The basic characteristic is the total thermal power of the device (it is with its help that the room is heated). It must be determined in accordance with the objectives of a particular heating system.
- Installation location is directly dependent on the power of the purchased device of this type.

- The type of device, depending on its layout, can be floor-mounted or wall-mounted. It is selected taking into account the characteristics of the location chosen for its further installation.
- The number of circuits is selected taking into account the conditions for further use of the device (exclusively for heating needs or also for uninterrupted supply of hot water). When choosing a dual-circuit model, it is necessary to take into account the type of device depending on the design of the heat exchangers.
- Combustion chamber type. Can be open or closed. Taking into account this characteristic, a system for removing combustion products is organized: through a forced removal system or through an ordinary chimney with natural draft. Devices with a closed combustion chamber are more expensive, but they can be installed in any room, and models with an open combustion chamber can only be installed in specially equipped non-residential premises.
- The level of dependence of the device on energy supply. It is recommended to take this characteristic into account if power outages often occur in a populated area.
- The presence of additional elements required to organize the full functioning of the heating system (built-in control and safety systems when using the device).
- Manufacturer and cost of a gas boiler, the size of which can vary significantly depending on the above characteristics.
How to decide on power
It is impossible to select a suitable model of a device of this type if it is not known what power the heating installation should have. The rated power indicator is always indicated in the technical documentation of the device. Sometimes you can even find recommendations regarding the volume of rooms that the device is designed to heat.However, these data are very conditional, since they do not take into account the characteristics of a particular residential premises and the actual conditions for the subsequent use of the gas boiler.
The power indicator of such a device can vary from 7 kW to 100 kW. In order to determine the optimal power value of such a device, it is necessary to take into account the size of the living space and the features of its thermal insulation.
ATTENTION! If the house is not new and its thermal insulation leaves much to be desired, you should choose a model with power “in reserve.” If the house or apartment has well-insulated walls, you should select a model without taking into account additional power.
When calculating the appropriate power rating of a gas boiler, it is necessary to take into account:
- area and cubic capacity of residential premises;
- features of local climatic conditions;
- quality of insulation of external walls;
- number of windows, their size and type of double-glazed windows;
- the presence of balconies and doors leading to the street;
- characteristics of the heating system.

It is recommended to entrust the performance of thermal engineering calculations to specialists. This will allow you to get the most accurate result.
How to choose a boiler installation location
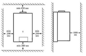
The installation location of such a device must be selected taking into account the relevant current standards:
- The selected room must have a total area of at least 4 m², and the ceiling height must be at least 2.5 m.
- The walls in the room should not be made of flammable materials. Otherwise, additional installation of a layer of special protective material will be required.

- It is mandatory to have windows in such a room. For every 10 m² of room there must be at least 0.3 m² of window opening.
- The doorway in the room should not be narrower than 0.8 m.
- The size of the chimney is directly dependent on the power indicators of the gas boiler. The most popular devices are those with a power of 30–40 kW. The best option for them would be chimneys with a diameter in the corridor of 130–170 mm.
- The outer part of the chimney must rise above the roof surface by at least 50 cm.
- The ventilation system must be installed in the upper part of the room.
- The room in which this type of device is to be installed must be fully ventilated.
Before using a gas boiler, you must obtain appropriate permission from the utility service.
Characteristics of floor-standing and wall-mounted boilers
There are different models of devices of this kind. Depending on the type of installation, such units can be wall-mounted or floor-mounted. From an interior design point of view, wall-mounted models have an absolute advantage. At the same time, floor-standing boilers have higher power.
Features of floor-standing boilers
These are quite massive structures that can be installed in any chosen location. Floor-standing boiler models may have a steel or cast iron heat exchanger.
REFERENCE! The undeniable advantage of cast iron is that it is not subject to corrosion (especially from the outside). The disadvantages include, first of all, the fragility of such a material (both under mechanical stress and under the influence of sudden temperature changes).
Floor-standing gas boilers with steel heat exchangers are more resistant to mechanical stress and have less weight. However, at the same time, such models are largely subject to corrosion.
Floor-standing gas boilers are divided into two types:
- with atmospheric burner;
- with an inflatable burner.
Floor-standing gas boilers in most cases have a power of more than 30 kW and are used to supply hot water and heat rooms with an area of over 50 m².
Features of wall-mounted boilers
Since such devices can be placed on the wall, they do not take up part of the floor space, which is very convenient, especially in small rooms. The heat exchanger design of wall-mounted models is simpler, but the power is lower and the level of functionality is worse.
The main types of wall-mounted gas boilers include:
- Bithermal installations. They consist of two metal tubes of different diameters, the smaller of which is inserted into the larger one. The external circuit carries the movement of coolant to heat the room, and the internal circuit flows hot water used for technical needs.
- Duothermic units. They are distinguished by the presence of two heat exchange systems independent from each other. Two copper tubes are located on two different sides of the housing. Each of them is heated separately. They supply their coolant to various pipeline systems.
Wall-mounted gas boilers are divided into the following types:
- single-circuit - used when installing autonomous heating systems;
- double-circuit - required if, in addition to heating, it is necessary to provide hot water for technical needs.
When choosing wall-mounted gas boilers for heating a country cottage, many experts advise paying attention to the presence of an anti-freeze function. At extremely low temperatures, this function helps prevent emergencies and rupture of heating pipes.
Which boiler is better to choose
Floor-standing models take up part of the floor space in the room. This can make a significant difference if the house is relatively small. Floor-standing gas boilers are more suitable for use in large houses (from 250–300 m²). Compact wall-mounted models with simple, intuitive controls are perfect for small cottages and small country houses.
The most versatile are considered to be double-circuit gas boilers, which are able to provide not only full heating of the room, but also an uninterrupted supply of hot water. When choosing a dual-circuit device, it is recommended to give preference to models with two heat exchangers: primary and secondary.
Modern models of gas boilers can have many additional options that ensure the convenience and safety of such devices during their operation. The best options have an automatic regulation system and a smooth adjustment system. Certain devices have the ability to turn on and off using a timer.
To ensure the ability to set the optimal temperature in the room so that the boiler does not subsequently click every 3 minutes when turning on and off, it is recommended to give preference to a model with modulation. This will allow you to smoothly increase or decrease the power of the device.

